賃貸 アパート | 堺市西区鳳中町 | 南大阪の不動産はセンチュリー21 千代田商事

堺市西区鳳中町の賃貸物件

オートロック、インターネット無料。
【アパート】 NEW!
賃料 5.8万円
阪和線 鳳駅 徒歩12分
スマホ表示
物件コード:089001-8502c
所在地 管理費
共益費
敷金
礼金
保証金
敷引・償却
専有面積
バルコニー面積
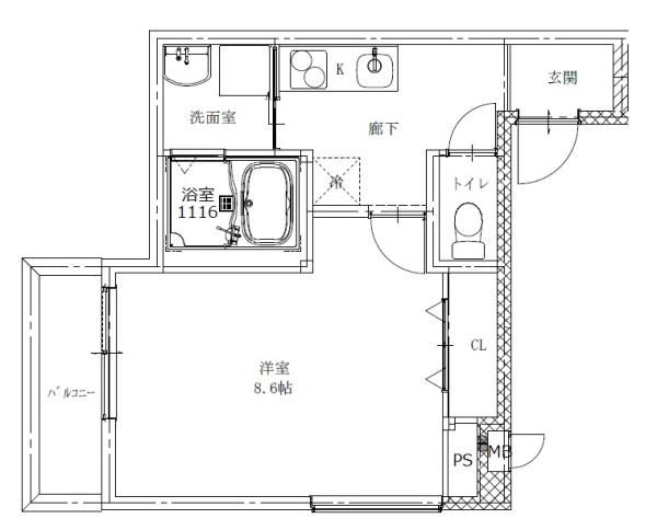
間取り
所在階
築年月
大阪府堺市西区鳳中町10丁18-5 -
4,500円
なし
70,000円
-
-
-
-
1K
1階
2023/03

物件基本情報

物件種目 アパート
物件名称 -
所在地 大阪府堺市西区鳳中町10丁18-5
交通
阪和線 鳳駅 徒歩12分
南海電鉄南海本線 羽衣駅 徒歩14分
仲介料 -
権利金 -
更新料 7,700円
建物構造 木造
所在階/階数 1階 / 3階建
部屋番号 103
部屋の向き -
駐車場
学校 鳳小学校 / 鳳中学校
設備・条件
  • ガス:都市ガス
  • 汚水:公共下水
  • 風呂:有
  • 水道:公営水道
  • トイレ:水洗
  • フローリング
  • システムキッチン
  • シャンプードレッサー
  • シャワー
  • バストイレ別
  • 洗浄便座
  • エアコン
  • CATV
  • BSアンテナ
  • CS受信可
  • 浴室乾燥機
  • バルコニー
  • オートロック
  • TVインターホン
  • 宅配ボックス
  • 駐輪場
  • コンロ二口
  • 室内洗濯機置場
  • インターネット対応済
センチュリー21 千代田商事
Tel072-266-3381
お気軽にお問い合わせください。

周辺地図

地図を表示中...
ストリートビュー未対応エリアです。

物件詳細情報

物件用途 居住用 火災保険
間取り詳細 洋8.6畳 保証会社 -
建物面積 29.26m2 その他費用 -
土地面積 - 借家権種類 普通借家権
総戸数 - 契約期間 1年
現況 空き予定 用途地域 -
引渡時期 期日指定 (2025年12月中旬) 取引態様 一般
設備その他 -
備考 -
公開日 2025/11/01 広告有効期限 2025/11/15
電話でお問い合わせ
センチュリー21 千代田商事 店舗情報
[所在地] 大阪府高石市綾園3-1-30
[営業時間] 9:00~19:00
Tel072-266-3381
お気軽にお問い合わせください。