賃貸 アパート | 堺市西区鳳中町 | 南大阪の不動産はセンチュリー21 千代田商事

堺市西区鳳中町の賃貸物件

オートロック、インターネット無料
【アパート】 NEW! 最上階
賃料 6.15万円
阪和線 鳳駅 徒歩8分
スマホ表示
物件コード:089001-7681c
所在地 管理費
共益費
敷金
礼金
保証金
敷引・償却
専有面積
バルコニー面積
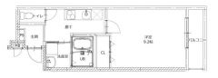
間取り
所在階
築年月
大阪府堺市西区鳳中町9丁1-32 -
4,700円
なし
50,000円
-
-
-
-
1K
3階
2024/03

物件基本情報

物件種目 アパート
物件名称 -
所在地 大阪府堺市西区鳳中町9丁1-32
交通
阪和線 鳳駅 徒歩8分
南海電鉄南海本線 羽衣駅 徒歩17分
仲介料 -
権利金 -
更新料 7,700円
建物構造 木造
所在階/階数 3階 / 3階建
部屋番号 302
部屋の向き
駐車場 空無
学校 鳳南小学校 / 鳳中学校
設備・条件
  • ガス:都市ガス
  • 汚水:公共下水
  • 風呂:有
  • 水道:公営水道
  • トイレ:水洗
  • フローリング
  • システムキッチン
  • シャワー
  • バストイレ別
  • エアコン
  • CATV
  • BSアンテナ
  • CS受信可
  • 浴室乾燥機
  • クローゼット
  • バルコニー
  • オートロック
  • TVインターホン
  • 宅配ボックス
  • 駐輪場
  • IHクッキングヒーター
  • コンロ二口
  • 室内洗濯機置場
  • インターネット対応済
センチュリー21 千代田商事
Tel072-266-3381
お気軽にお問い合わせください。

周辺地図

地図を表示中...
ストリートビュー未対応エリアです。

物件詳細情報

物件用途 居住用 火災保険
間取り詳細 洋9.2畳 保証会社 -
建物面積 30.16m2 その他費用 -
土地面積 - 借家権種類 普通借家権
総戸数 - 契約期間 1年
現況 空き予定 用途地域 -
引渡時期 期日指定 (2025年11月中旬) 取引態様 一般
設備その他 -
備考 -
公開日 2025/10/17 広告有効期限 2025/10/31
電話でお問い合わせ
センチュリー21 千代田商事 店舗情報
[所在地] 大阪府高石市綾園3-1-30
[営業時間] 9:00~19:00
Tel072-266-3381
お気軽にお問い合わせください。

このページをご覧の方に
おすすめの賃貸物件