賃貸 アパート | 堺市西区鳳西町 | 南大阪の不動産はセンチュリー21 千代田商事

堺市西区鳳西町の賃貸物件

【アパート】 駐車場あり
賃料 6.9万円
阪和線 鳳駅 徒歩12分
スマホ表示
物件コード:089001-6812c
所在地 管理費
共益費
敷金
礼金
保証金
敷引・償却
専有面積
バルコニー面積
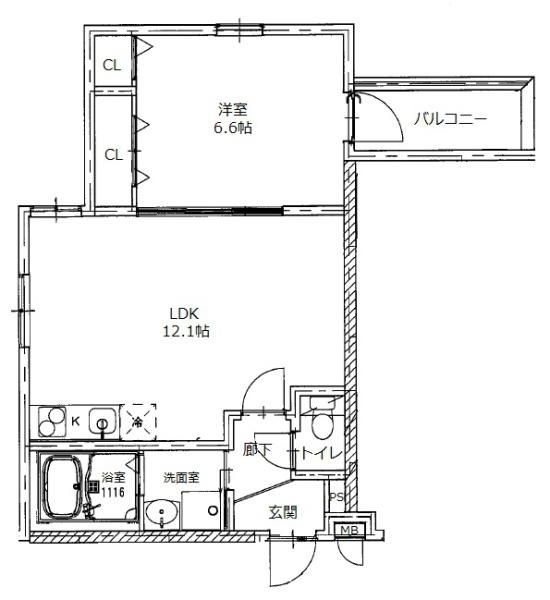
間取り
所在階
築年月
大阪府堺市西区鳳西町3丁9-4 -
5,300円
なし
120,000円
-
-
-
-
1LDK
2階
2023/05

物件基本情報

物件種目 アパート
物件名称 -
所在地 大阪府堺市西区鳳西町3丁9-4
交通
阪和線 鳳駅 徒歩12分
南海電鉄南海本線 羽衣駅 徒歩14分
仲介料 -
権利金 -
更新料 7,700円
建物構造 木造
所在階/階数 2階 / 3階建
部屋番号 202
部屋の向き -
駐車場 空有 8,800円 (税込)
学校 鳳南小学校 / 鳳中学校
設備・条件
  • ガス:都市ガス
  • 汚水:公共下水
  • 風呂:有
  • 水道:公営水道
  • トイレ:水洗
  • フローリング
  • システムキッチン
  • シャワー
  • バストイレ別
  • 洗浄便座
  • エアコン
  • CATV
  • BSアンテナ
  • CS受信可
  • 浴室乾燥機
  • Wクローゼット
  • バルコニー
  • オートロック
  • TVインターホン
  • 宅配ボックス
  • 駐輪場
  • 室内洗濯機置場
  • インターネット対応済
センチュリー21 千代田商事
Tel072-266-3381
お気軽にお問い合わせください。

周辺地図

地図を表示中...
ストリートビュー未対応エリアです。

物件詳細情報

物件用途 居住用 火災保険
間取り詳細 LDK12.1畳、洋6.6畳 保証会社 -
建物面積 42.06m2 その他費用 -
土地面積 - 借家権種類 普通借家権
総戸数 - 契約期間 1年
現況 空き予定 用途地域 -
引渡時期 期日指定 (2026年1月中旬) 取引態様 一般
設備その他 -
備考 -
公開日 2025/11/29 広告有効期限 2025/12/13
電話でお問い合わせ
センチュリー21 千代田商事 店舗情報
[所在地] 大阪府高石市綾園3-1-30
[営業時間] 9:00~19:00
Tel072-266-3381
お気軽にお問い合わせください。

このページをご覧の方に
おすすめの賃貸物件